
406 Higuera, SLO
Property Description:
NEW
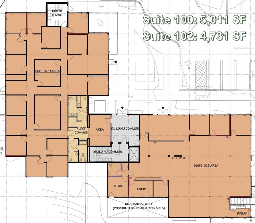
Address: 406 Higuera Street
City: San Luis Obispo, California
Size: 2,262-19,081 SF
Price: $2.25/SF, NNN ($0.75)
Type: Office
Notes: Several configurations are available. There are five suites which provide the flexibility of occupying anything from 2,262 SF to 19,081 SF. This location, which overlooks San Luis Creek and San Luis Mountain, is within a short walk to downtown, and is directly adjacent to the US 101 interchange and the San Luis Mountain trailhead. Plentiful on-site parking.